slovensky
Na počest Nejtvrdšího závodu 24H FICHTL mazec na této planetě který bude tentokrat pokořovat novou Trať v Nové Pace a to 16-17.května,,,, si bere SESA polo dovču 19,5-21,5 .-) coby jednou nohou v praci ,,,,,,,,,,,,,,,,,,,,,Fichtlkramek posíla jen GLS - na adresu s dobírkou za 140kč a luxusní cenu výdejního mista/boxu včetně dobírky od GLS za 75kčc  jen košik je ještě na to nepřipraven ale maka se na tom,, pokud budte chtit vydejko napiste vzkaz k objednavce,, vydejka  https://maps.gls-czech.cz/
  V kolečku není žádná položka Fichtl-pokec   |   Chat   |   Pravidla  |  Co je Fichtlkrámek?  |  Pravidla  |  FICHTLkrámský Oběžník  |  Cookies       

VAPE 6V/100W-jednovalec



Jméno výrobku: VAPE 6V/100W-jednovalec
Číslo výrobku: 2K0810
Cena: 7 440 Kč
Koupit:

 
typ: 11/353/356/559/590-455/476/487

model: Pérák/Kývačka/Panelka

podrobný popis: Draku,,dej pozor při montáži na kolíček na klice,, pač jak je delší, tak rotor nedosedne celej na kužel od kliky a pak? bud to odzkačou magnety, pač stačí malínká hazivost a magnety se rozdrtí. A nebo to začne dřít a tím se to celézačne zahřívat.

zkušenosti: Každopádně jak jednou zapojíte špatně baterii,,tak okamžitě spálíte usměrňovač!

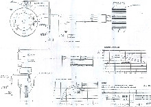
Scéma zapojení http://www.vape.cz/img/Podpora/Rozmer/A-SZ14-1.pdf Tento komplet nahrazuje celou orig. zapalovací sadu bez tohoš aby jste do motocyklu nemuseli vážnějí zasahovat!. Nesmírná výhoda je v tom že se jedná o bezkontak, žádné kladívka, žádné pravidelné seřizování předstihu, žádně klečení aby to jelo. A navíc 110W zdroj, vám umožní nasadit lepší žárovky,,tak aby to už konečně v noci svítilo. Tyhle dvě přednosti dělají z Vape opravdu dobrou investici obzvláště pro ty co na Jawce / ČZ nalítají hafo kilometrů za rok.
Sada obsahuje podrobný návod pro montáž, jde o to nahradit zapalovací cívku za menší, usměrňovač dát pod sedlo či do kastlíku, zkratovač kterým se jednoduše chcípne motor se dá na řídítka. A to nejdůležitější je vyndat stávající orig zapalování a cele to jednoduše zaměnit za vape. Dobrý návod i tu http://www.vape.cz/podpora/dokumenty-ke-stazeni/navody-na-montaz/
tu video jak namontovat zapalko vape,, sice je videt 12V na dvouvalec ale zaklad je vzdy stejny jak pro 6V tak i pro jednovalec http://www.youtube.com/watch?v=Ljj3dPkf-JU&list=UUeVAzhufOK-ZiM0e54ptp7w&index=1&feature=plcp

 

 


Všechy zobrazená ceny v tomto E-shopu jsou včetně DPH
Provozovatel tohoto E-shopu (FICHTL krámku) FICHTL krámek s.r.o., K Babímu dolu 390, 251 69 Velké Popovice
IČO: 01871790; DIČ: 01871790; E-mail:

Redakční systém naprogramoval: Petr Malý  |  Optimalizováno pro FireFox 4+, IE 9 a Google Chrome  |  Vygenerováno: 13.04.2026 10:28:14 CET  |  Tato stránka je validní HTML 4.01 standardu